
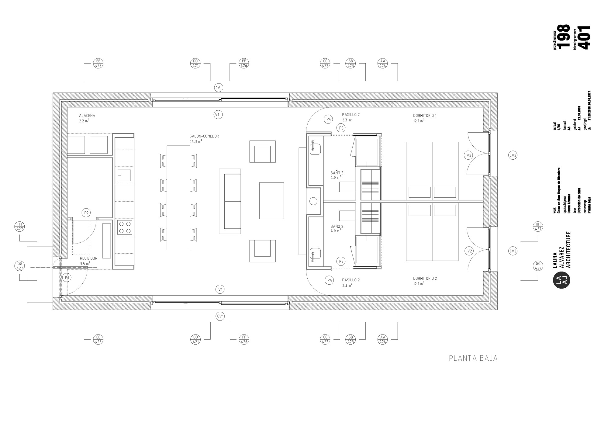
스페인 북부에 있는 자연공원인 Valles Pasiegos, 그중에서도 2헥타르가 넘는 부지에 있던 완전히 폐허가 된 건물 대신 새로 지은 숙소 건물이다. 이 건물은 축사가 딸린 칸타브리아 산악 지방의 전통 가옥인, 까바냐 빠시에가cabaña pasiega를 현대적으로 재해석한 것이다. 남향의 언덕에 위치하여, 계곡을 향한 인상적인 전망을 가지고 있다.
구조는 매우 단순하다. 거실 양쪽으로 난 두 군데의 대형 파노라마 창을 통해, 산, 구름, 그리고 나무 등 주변의 아름다운 풍경이 한눈에 들어온다. 가장 안쪽 거실 바로 옆에는 전용 욕실 딸린 두 개의 침실이 동쪽 숲을 향해 배치되었다. 아침이면 해가 드는 두 침실의 전용 욕실 위에는 높은 천장고를 이용하여 중이층 구조로 다락을 설치하여, 잠자리가 부족할 경우 침실로 사용할 수 있게 했다.
이 숙소는, 미적으로나 기술적 측면에서 환경에 미치는 영향이 최소화되도록 계획되었다. 열 손실을 최소화하기 위해, 히트 펌프, 바닥 난방, 그리고 고성능 단열과 고품질 창호 등이 적용된 패시브 하우스로 지어졌다. 겨울에는 고성능 유리 덕분에 실내가 데워지고, 여름철에는 대형 목제 셔터가 열 취득을 막아준다. 사용된 모든 재료는, 구옥을 철거하면서 획득한 석재를 재사용하거나 칸타브리아 지역 내에서 생산된 것들을 사용했다고 한다.
거친 석재를 사용한 외부와 달리 내부는 매끄러운 재료로 인테리어 되었다. 거친 것과 매끄러운 것, 열린 구조와 닫힌 구조, 목재 천장과 회색 바닥, 내부와 외부, 전통과 현대 등 절묘한 대조를 이루는 요소들이 많은 건물이다. 온기가 느껴지는 목재와 흰색 벽을 배경으로, 클래식한 의자와 현대적인 미니멀 요소들이 결합되어, 천혜의 자연환경을 즐길 수 있는 매우 차분한 공간으로 연출되었다.
HOUSES • SAN ROQUE DE RIOMIERA, SPAIN
Architects : Laura Alvarez Architecture
Area : 160 m²
Year : 2017
Photographs : David Montero
Manufacturers : Artifort, Innovation Living, J.G. Herman Ceramics
Contractor : SOAL inversiones
Interior Wood Works : Carpinteria Astillero
Model Making : Matteo Silverii
Local Support Building Permit : Ivan Arenal, Patricia Revuelta.
Interior Woodwork : Carpinteria Astillero
Villa Slow by Laura Alvarez Architecture
























