반응형

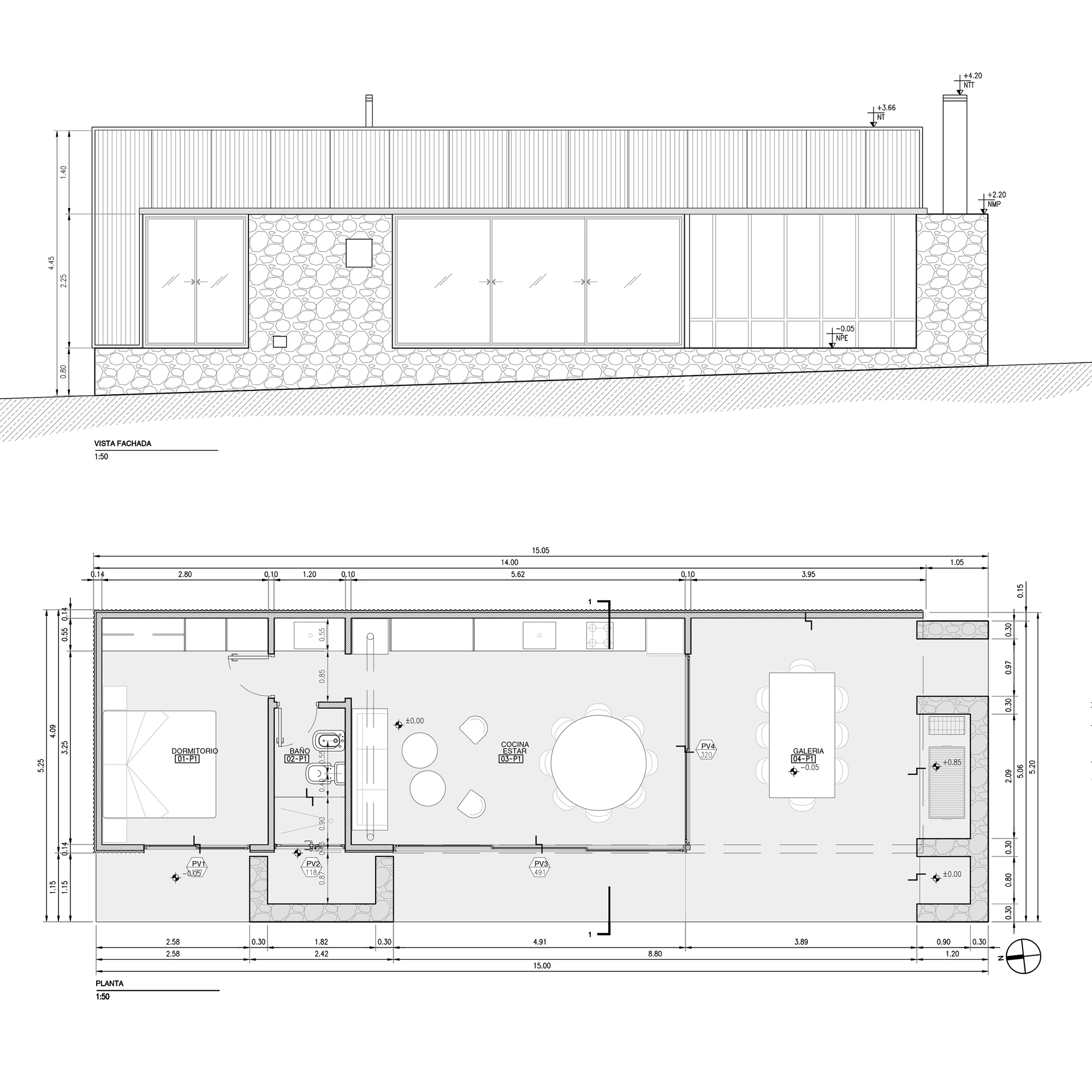
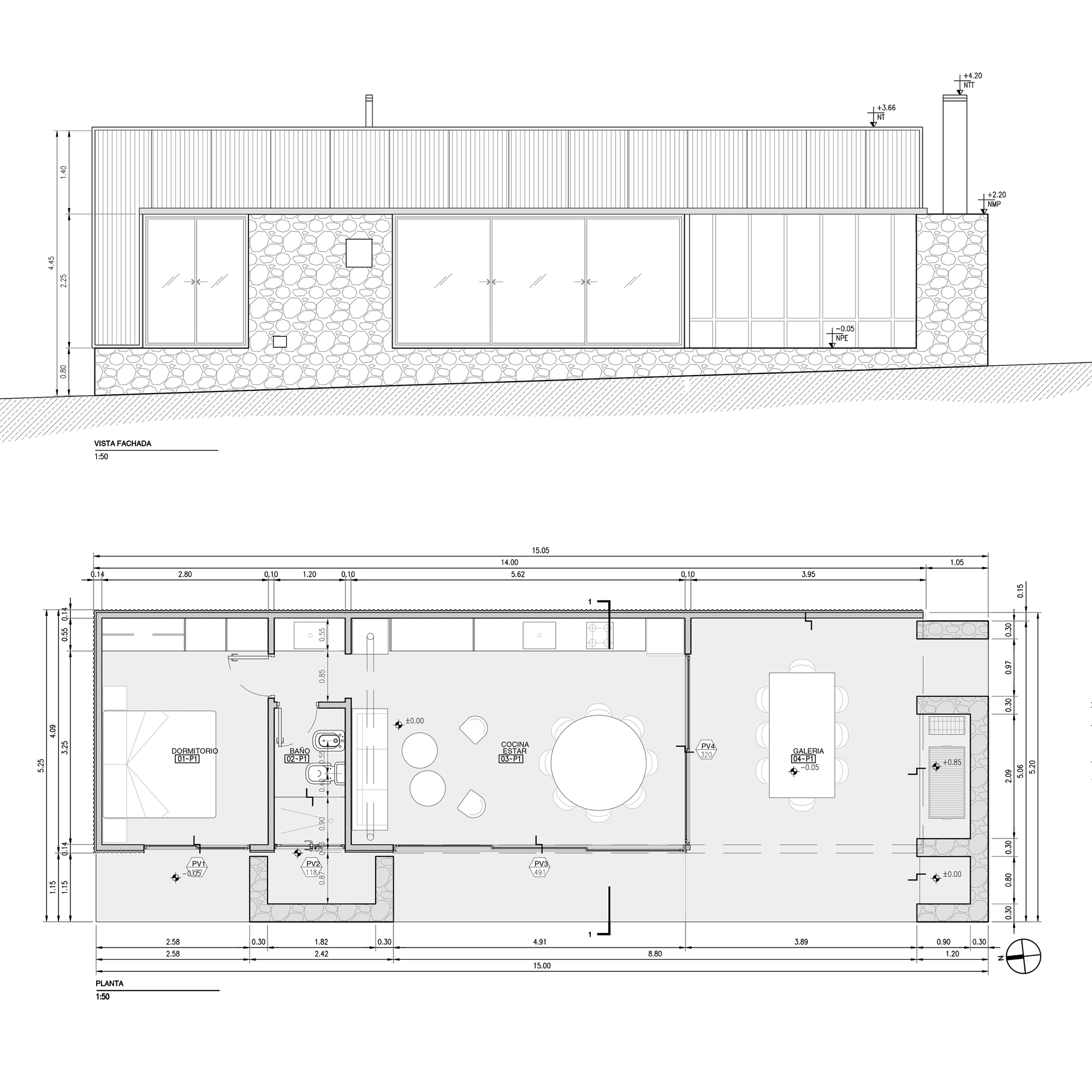
아르헨티나 로스 히간테스Los Gigantes 산맥 기슭에 있는, 완만하게 경사진 오지 땅에 지은 모듈 주택이다. 40평방미터(약 12평) 규모의 이 집에는 산을 향한 전망을 제대로 즐길 수 있는 22평방미터(약 6.7평) 면적의 반 외부 공간이 딸려 있다.
공간 효율적으로 계획된 이 집은, SIP 샌드위치 패널, 석재, 징크 패널, 소나무 목재 등을 사용하여 시골 풍경과 어울리는 따뜻하고 단순한 형태로 지어졌다.
HOUSES • SAN CLEMENTE, ARGENTINA
Architects : Set.ideas
Area : 40 m²
Year : 2022
Photographs : Gonzalo Viramonte
Lead Architect : Carlos Arias Yadarola
Design Team : Carolina Rufeil, Julieta Moyano, Catalina Gasch

























반응형