반응형

조형미 만점의 빨간 계단이 있는 듀플렉스 하우스
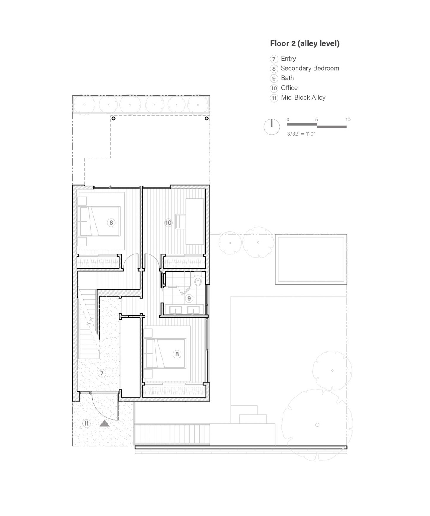
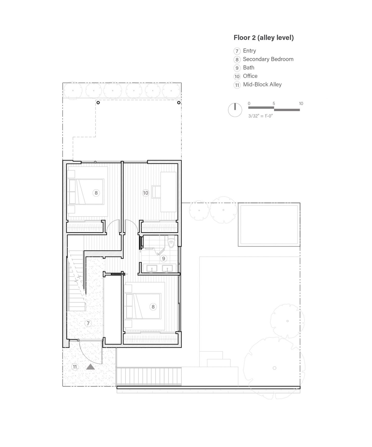
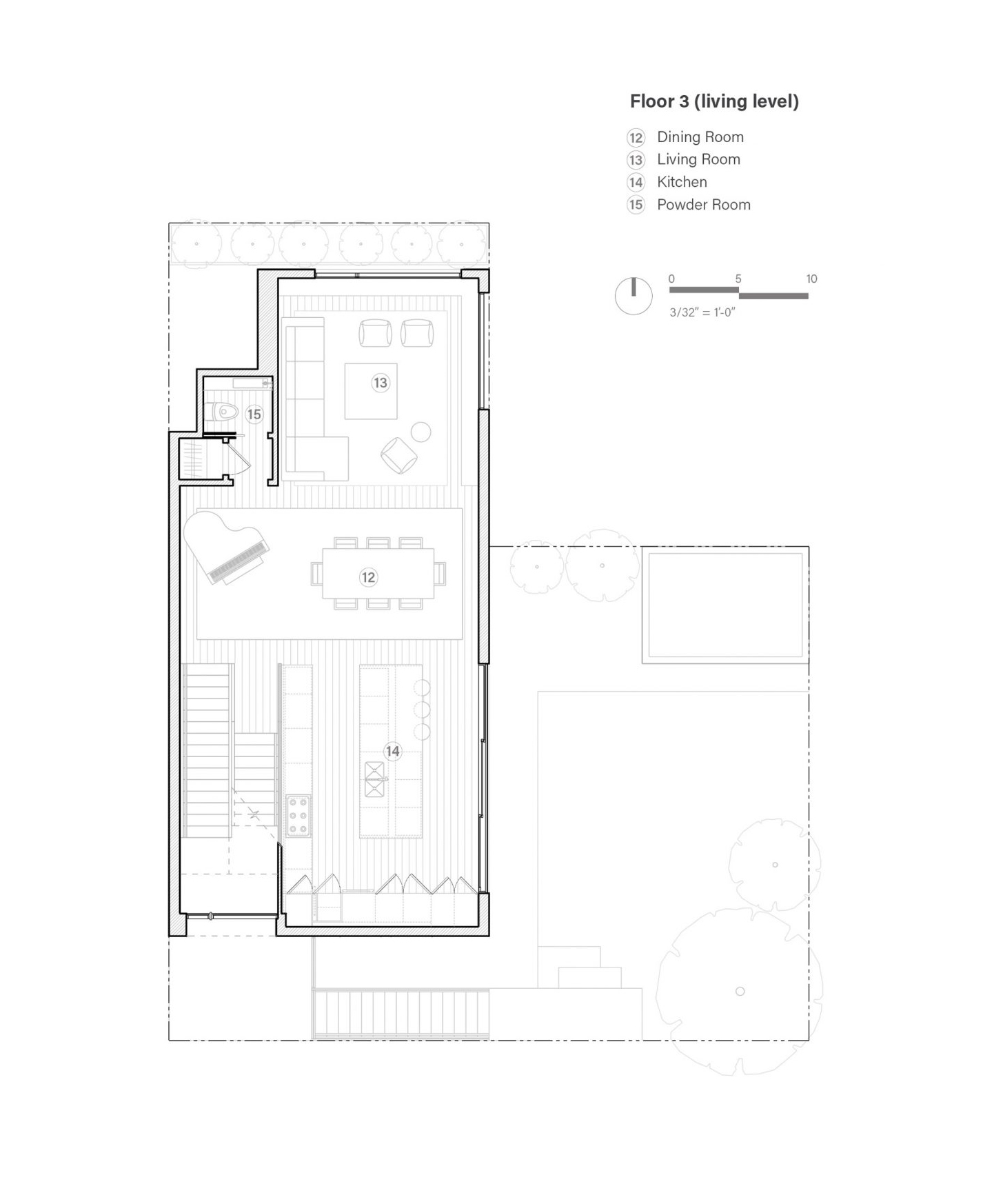
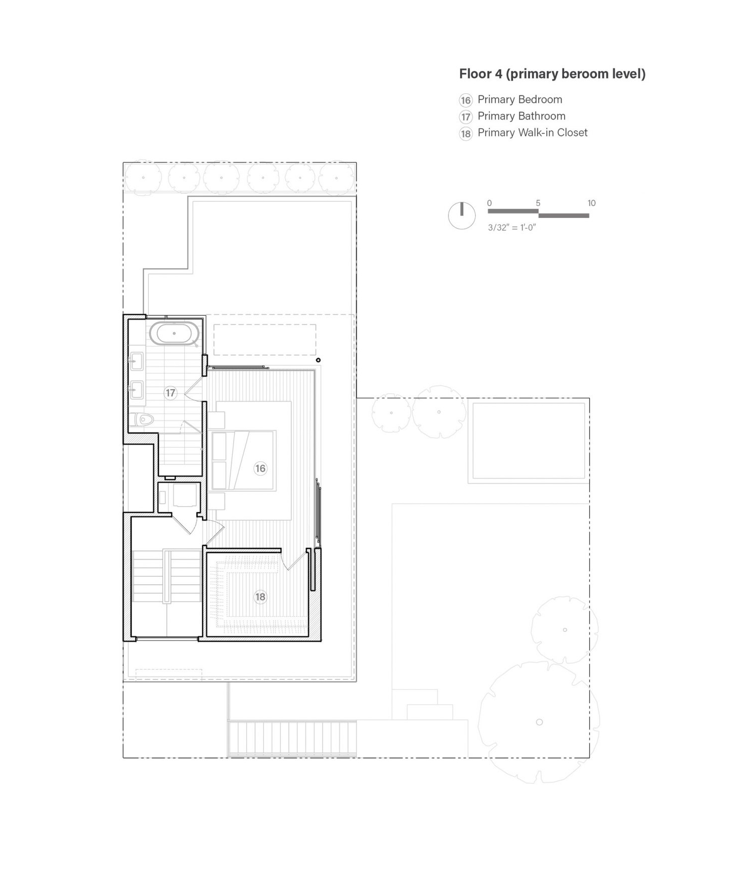
샌프란시스코의 러시안 힐Russian Hill, 그중에서도 자동차 진입이 안 되는 밀집 지역의 골목 끝에 위치한 1900년대 초의 기존 두 가구 주택을, 4층, 3,300제곱피트(약 93평) 규모로 개조한 듀플렉스 하우스이다.
Architect: Dumican Mosey Architects
General contractor: Devlin McNally Construction
Structural: Holmes Structures
Landscape: Owner/Rene Bihan
Photographer: Blake Marvin Photography
Russian Hill Residence 2 by Dumican Mosey































반응형
'House' 카테고리의 다른 글
| 대수선! 내력벽을 철골로 교체한 개방형 주거, House and Studio Anaya by Vrtical (0) | 2023.06.12 |
|---|---|
| 속 깊은, 중정형 테라스 하우스, House in Rua São Francisco de Borja by Ricardo Bak Gordon (1) | 2023.06.07 |
| Casa Cañuelas Village by Estudio Montevideo (1) | 2023.05.31 |
| 향수를 불러일으키게 지은 현대식 전원주택, VIPA Farm House by Studio One By Zero (0) | 2023.05.30 |
| 공간 구조가 독특하게 계획된 홀리데이 홈, Dune House by BNLA Architecten (0) | 2023.05.10 |