
The original language of this house, at first glance, does not fit into any particular trend, yet its appearance seems to belong to a time and social class that settled in the Education Colony in the 1960s.
The project arose from the possibility of restructuring the entire ground floor, surgically demolishing three load-bearing walls, and replacing them with cross-shaped steel columns and lintels. These elements gave the rules for the new pasta and terrace floor sections. At the same time, we made very flexible gates in their opening, and transformed the garage and back patio into small natural oases, connecting the ground floor and thus changing its rules of inhabiting.
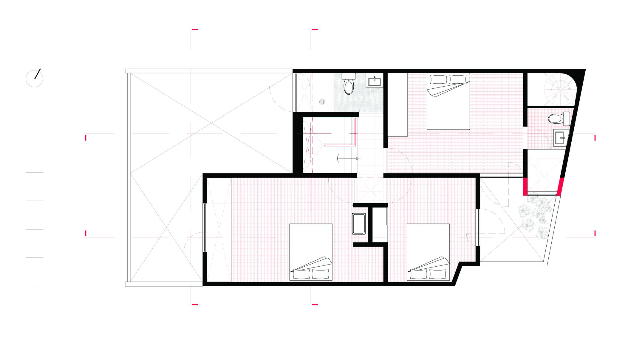
The upper level was also intervened in its finishes, some of which recall the original state, as in the colorful bathrooms. That cute idea of articulating spaces on the top floor through skylights was also rescued, some of them introspective, with atmospheric tributes, as in the golden skylight of the staircase or the window of the master bedroom. On the façade, small big changes were proposed in the position and size of the existing openings, seeking new symmetry and proportions that were almost written into the original design, all accentuated with the colors of the façade.
Currently, the house is inhabited for short periods of the year, and it should be mentioned that it is the base of a writer and architecture researcher and therefore has become a kind of refuge/study that evokes memories of a space and time in Mexico City.
HOUSES • CIUDAD DE MÉXICO, MEXICO
Architects: Vrtical
Area: 192 m²
Year: 2022
Photographs: Oscar Hernandez
Lead Architects: Luis Beltrán del Río, Andrew Sosa
House and Studio Anaya by Vrtical


















'House' 카테고리의 다른 글
| 프랑스 알프스에 고상식으로 지은 육각 캐빈, Two Cabins Perched On Stilts by Cyril Chênebeau (0) | 2023.06.14 |
|---|---|
| 속 깊은, 중정형 테라스 하우스, House in Rua São Francisco de Borja by Ricardo Bak Gordon (1) | 2023.06.07 |
| 조형미 만점의 빨간 계단이 있는 듀플렉스 하우스, Red Stair House by Dumican Mosey (1) | 2023.06.02 |
| Casa Cañuelas Village by Estudio Montevideo (1) | 2023.05.31 |
| 향수를 불러일으키게 지은 현대식 전원주택, VIPA Farm House by Studio One By Zero (0) | 2023.05.30 |