
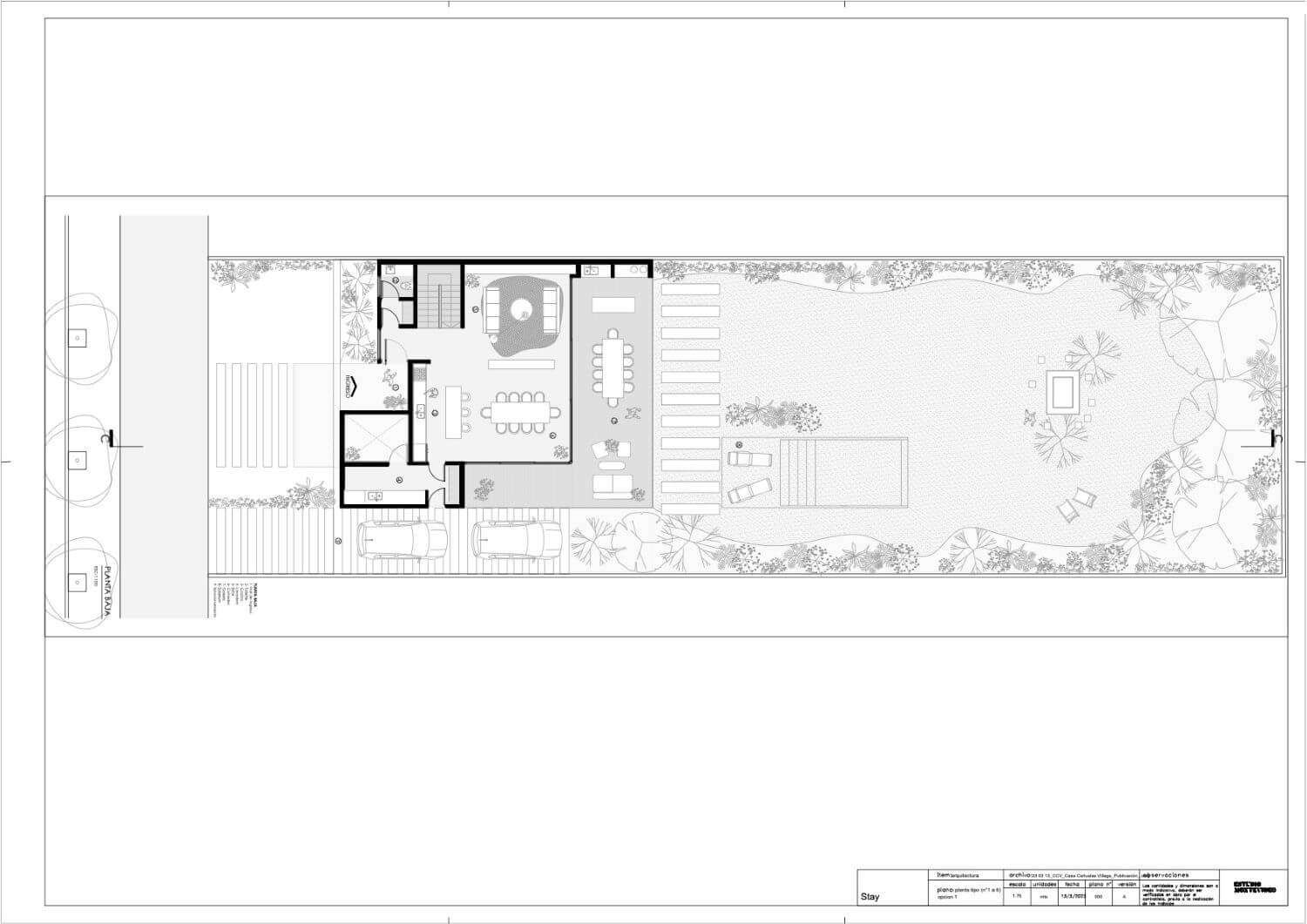
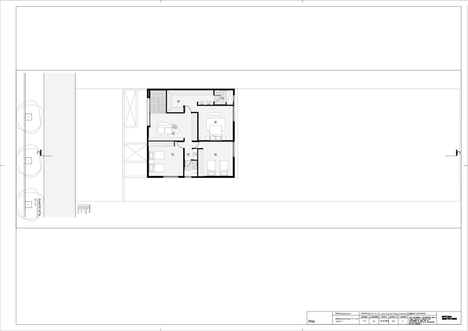
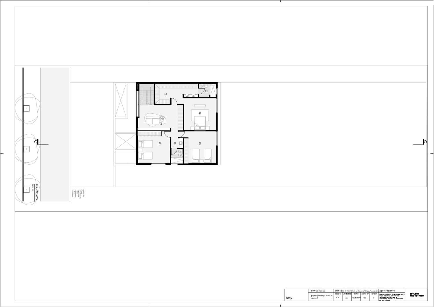
Estudio Montevideo: Based on the concept of the void as an articulator between the existing and the new, a compact volume is cut out from which different elements are extracted and displaced to enhance the morphological reading of the project, achieving the disunity between the new and the old and incorporating the vegetation in the voids, creating a new ambiguous spatial experience between the interior and the exterior.
Architecture firm: Estudio Montevideo
Location: Barrio Cañuelas Village, Córdoba capital, Argentina
Photography: Gonzalo Viramonte
Principal architect: Ramiro Veiga, Marco Ferrari, Gabriela Jagodnik
Design team: Hugo Radosta, Gustavo Macagno, Franco Ferrari
Built area: 235 m²
Completion year: 2022
Structural engineer: Andrés de simone
Material: Concrete, Wood, Glass, Steel
Client: Ignacio Mosquera
Cañuelas Village by Estudio Montevideo

































