반응형

속 깊은, 중정형 테라스 하우스
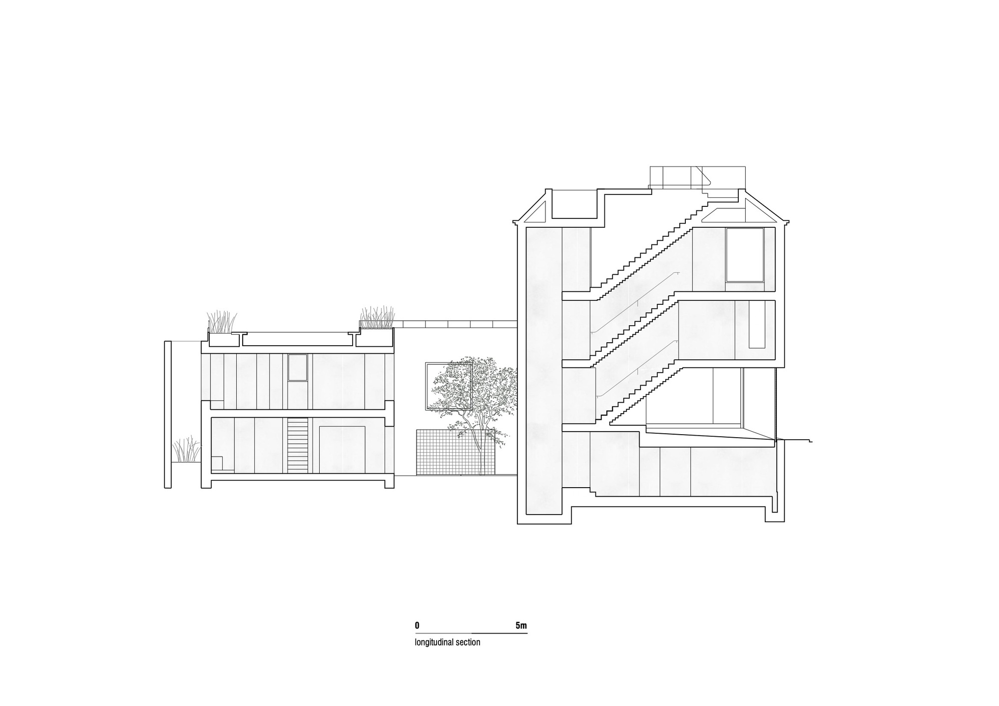
리스본 소재 국립고미술관Museu Nacional de Arte Antiga의 인접 동네인 Lapa에 위치한, 약 7m x 26m 크기의 좁고 긴 부지에 들어선 테라스트 하우스이다. 이 집은, 중정을 공유하는 두 개의 볼륨(2층 규모의 침실 볼륨, 오피스를 포함한 4층 규모의 공용 볼륨)으로 이루어졌다.
HOUSES • LISBOA, PORTUGAL
Architects: Ricardo Bak Gordon
Area: 439 m²
Year: 2023
Photographs: Francisco Nogueira
Lead Architect: Ricardo Bak Gordon
Project Coordination: Nuno Costa
Collaborators: Daniela Cunha, Maria Passos, Pedro Saraiva, Tânia Correia
Construction: 2GM - Construções Civis, S.A.
Inspection: GreenTool - Gestão de Projectos e Investimentos
Foundations And Structures: Profico
Installations: ATPI
MEP: Natural Works
Landscape Design: F&C
House in Rua São Francisco de Borja by Ricardo Bak Gordon























반응형
'House' 카테고리의 다른 글
| 프랑스 알프스에 고상식으로 지은 육각 캐빈, Two Cabins Perched On Stilts by Cyril Chênebeau (0) | 2023.06.14 |
|---|---|
| 대수선! 내력벽을 철골로 교체한 개방형 주거, House and Studio Anaya by Vrtical (0) | 2023.06.12 |
| 조형미 만점의 빨간 계단이 있는 듀플렉스 하우스, Red Stair House by Dumican Mosey (1) | 2023.06.02 |
| Casa Cañuelas Village by Estudio Montevideo (1) | 2023.05.31 |
| 향수를 불러일으키게 지은 현대식 전원주택, VIPA Farm House by Studio One By Zero (0) | 2023.05.30 |