
Our reflection first focused on the need to design a form of hut capable of adapting to the multiplicity of topographical and landscape situations found on this heavily wooded site, a kind of “ideal” hut. The result of this preliminary work and the in-depth analysis of the program and the specifications set by the contracting authority leads us to propose a project for a cabin with a slightly elongated unitary shape, a prism that is refined at both ends in order to slip between the trees.
The architecture of the huts plays on the duality between a traditional built form and a contemporary "alternative" habitat perched on its piles. A simple and compact volumetry. A nine-sided prism, with a two-sided roof resting on a three-dimensional structure made up of self-braced V-shaped wooden posts. This singular structure gives the image of leaning trunks (rough stripped larch poles) on which the living space would have come to rest, thus reinforcing the effects of "overhang" and the perception of the image of a "subtly" cabin perched. Work also focused on the ability to offer, through architecture, an immersion in an exceptional place on the edge of the Mercantour National Park. Nature and the sun filtered by the larches generously penetrate the interior spaces. Every moment of the day offers a unique experience and light between shadow and light. These contrast effects are reinforced here by the use of the outer envelope, of burnt wood cladding (dark tint) which vibrates with the tint of the bark of the larch trunks and a load-bearing structure (light tint), apparent and expressive. The large bay windows placed on the bare exterior let you glimpse depths, transparencies, and the warm aspect of a neat interior architecture.
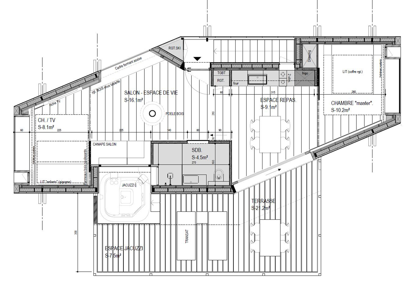
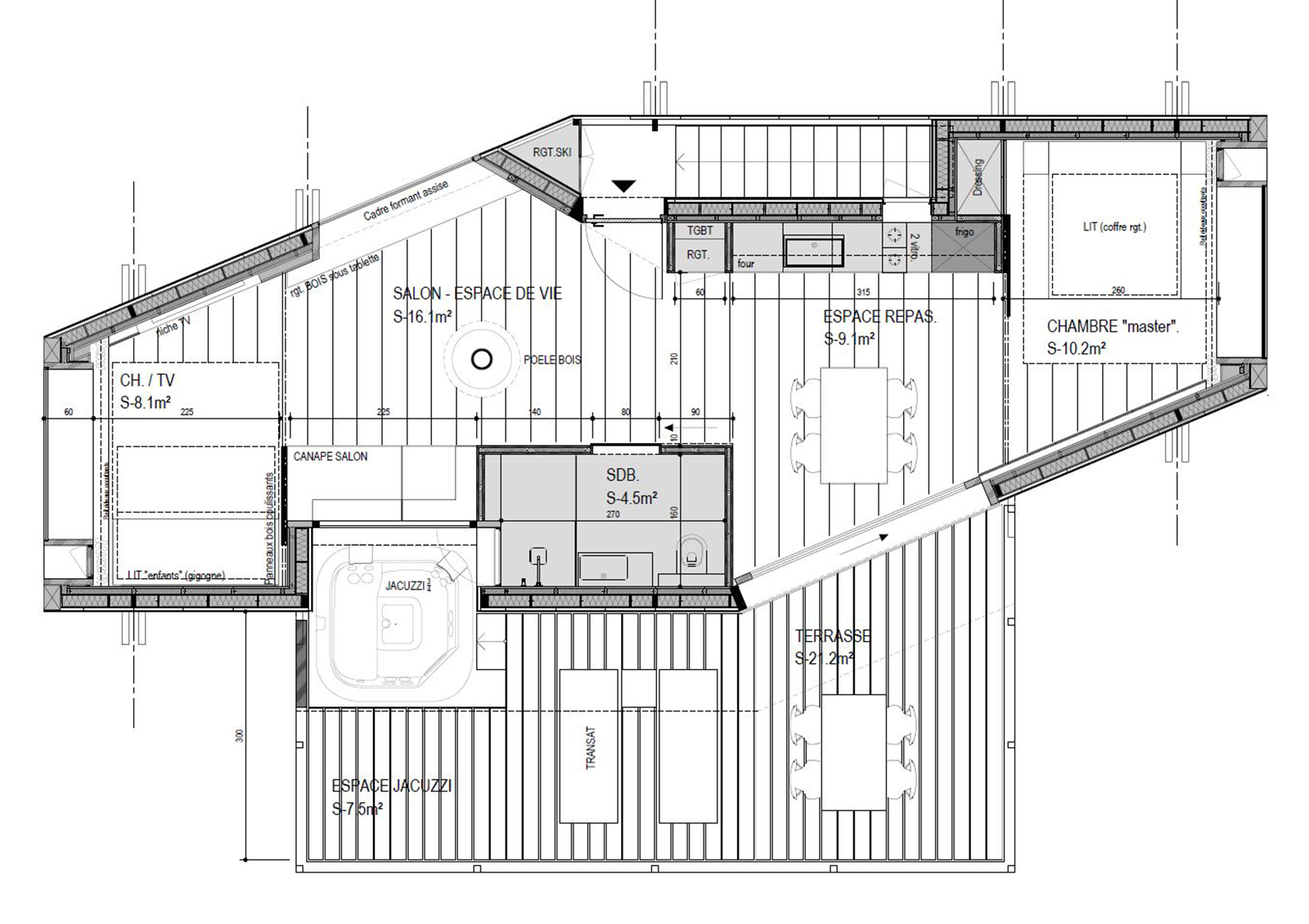
From the inside, the view unfolds in six directions (prism effect), the hut thus benefits from multiple and varied orientations. The layout has been thought out to be flexible in order to meet a diverse and demanding clientele. The hut can thus be used in the configuration, type "loft" open spaces, or in partitioned configuration by the use of simple sliding panels closing the night spaces. The interior volume is generous with a ceiling under the sloping roof (set to the maximum of the possibilities offered by the PLU). The common space is organized around a stove with a central hearth. The spa area is visible and dialogues with the living room. It is connected and accessible in particular from the outside via the large south-facing pleasure terrace.
The materials are noble and durable, and the assemblies and construction details are neat. The choice of coverings and furniture are carefully selected to underline the authentic and contemporary spirit of the place. The project thus offers "exemplary and comfortable" housing units during the four seasons with a "top-of-the-range" level of service which makes it possible to offer future users a unique experience immersed in the heart of the Boréon forest massif.
HOUSING, RESIDENTIAL • SAINT-MARTIN-VÉSUBIE, FRANCE
Architects: Cyril Chênebeau
Area: 70 m²
Year: 2022
Photographs: Aldo Amoretti
Manufacturers: Hisbalit, Duravit, AmPm, Bautier, Cadel, HAY, Lignalpes, MARAZZI
Lead Architects: Cyril Chênebeau, Fabrice Carbone
Project Management Assistance: Département des Alpes Maritines
HVAC Consultans: Kleber Daudin
Structural Engeneering: TECKICEA
Timber Contractor: Les Charpentiers de la Corse
Flooring Contractor: Ambrassi
Design Team: Fabrice Carbone, Alex Amarrurtu, Alexia Manganaro, Ilyes Meriout
Fittings: MDA Frette
LES CABANES PERCHÉES by Cyril Chênebeau
































'House' 카테고리의 다른 글
| 대수선! 내력벽을 철골로 교체한 개방형 주거, House and Studio Anaya by Vrtical (0) | 2023.06.12 |
|---|---|
| 속 깊은, 중정형 테라스 하우스, House in Rua São Francisco de Borja by Ricardo Bak Gordon (1) | 2023.06.07 |
| 조형미 만점의 빨간 계단이 있는 듀플렉스 하우스, Red Stair House by Dumican Mosey (1) | 2023.06.02 |
| Casa Cañuelas Village by Estudio Montevideo (1) | 2023.05.31 |
| 향수를 불러일으키게 지은 현대식 전원주택, VIPA Farm House by Studio One By Zero (0) | 2023.05.30 |