
건물 자체는 물론 전망을 포함한 외부공간과 내부 공간 사이를 환경과 연계시키려는, ‘관계 맺기’ 콘셉트로 디자인된 체코의 현대식 주택이다. 이 콘셉트는, 집과 도시 사이, 집과 정원 사이, 그리고 정원과 도시 사이에 적용되었다. 이런 관계 맺기 콘셉트는 집 안에도 적용되었다. 집 전체를 관통하는 내부의 공용 영역이 외부와 이어져 있고, 분리된 모든 개별 영역 또한 각각 고유한 외향적 관계를 갖도록 계획되었다.
도로 측 파사드에 필름을 시공하여 안에서 밖은 보이면서도 밖에서 안은 보이지 않게 함으로써, 내부의 프라이버시가 확보되었다. 재료(유리)를 통해, 남쪽 정원과 북쪽 도시 사이의 시각적 관계가 설정되었다. 앞뒤 파사드에 유리(통창)를 적용함으로써 건물을 관통하여 정원과 도시를 이었다는 뜻이다.
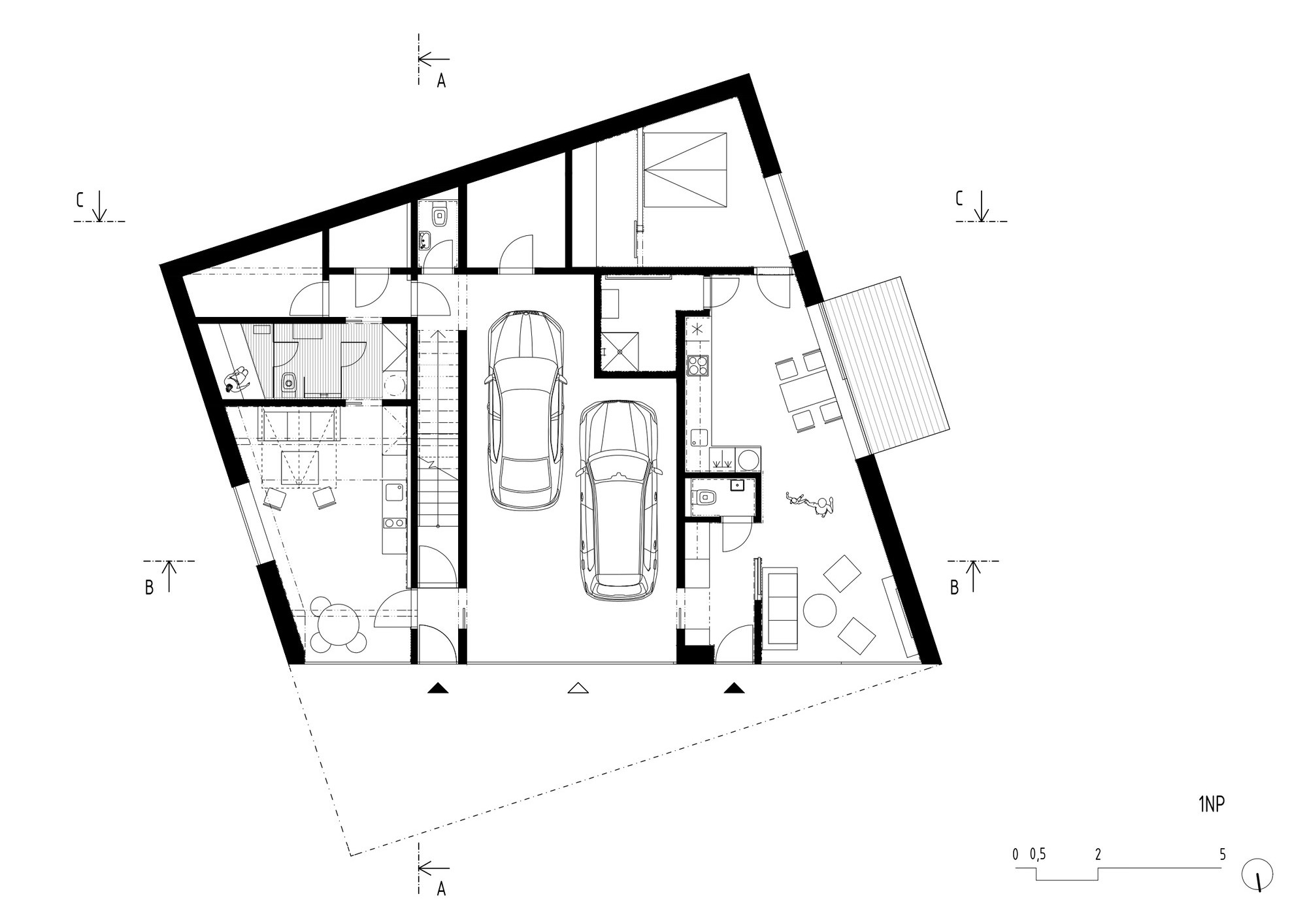
건물 자체는 이웃집들과 같은 방향을 향하도록 배치되었고, 내부 공간들은 시가가 있는 정 북쪽을 향하도록 평면이 계획되었다. 그래서 외벽과 내벽이 비스듬하게 만나는 집이 되었다.
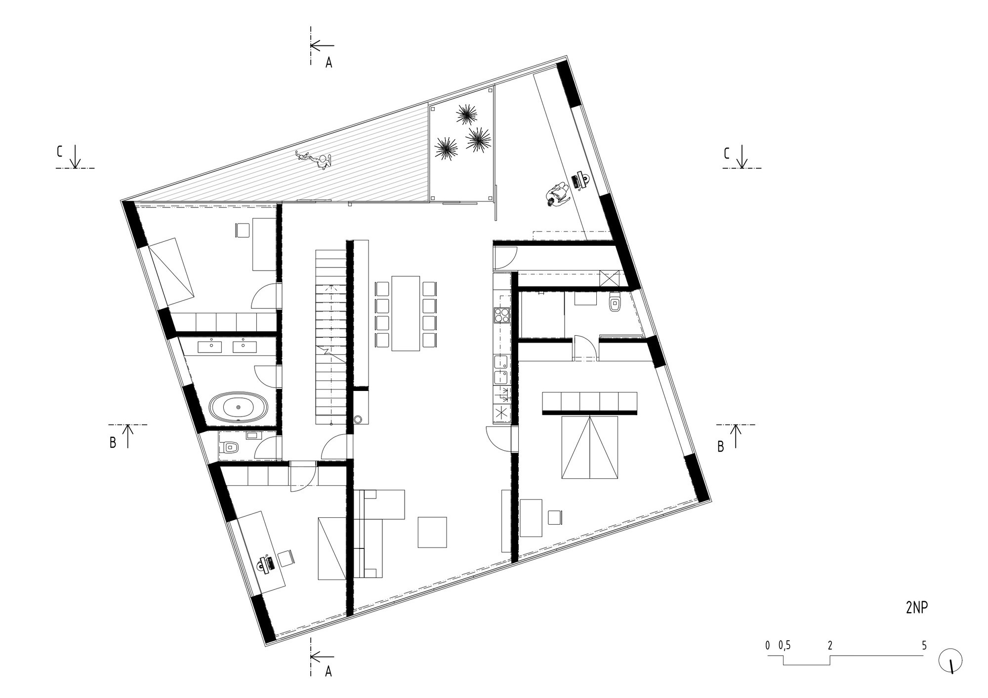
비탈진 지면보다 낮게 설치한 1층 위에, 거실이 들어 있는 2층이 사각 프리즘 형태로 올려졌다. 그래서 남쪽에서 보면 단층집처럼 보인다. 차고 입구 파사드를 대지의 세로축과 직각이 되도록 후퇴시킴으로써, 차고 입구 위로 돌출된 위층이 처마를 이루었다. 2층 남측에도 같은 방식으로 테라스 공간이 확보되었다.
옥탑에 사방이 유리로 된 스튜디오를 설치한 다음, 건축으로 줄어든 정원 면적이 회복되도록 옥상을 녹화했다.
이 집은, 변화하는 요구에 따라 용도를 변경하여 사용할 수 있게도 계획되었다. 1층은 정원(뒤뜰)과, 2층은 정원(앞마당)이나 먼 풍경과 연결되어 있어서, 대가족이 집 전체를 사용하거나 아니면 두 가구 또는 세 가구용으로 사용할 수도 있는 구조이다.
이 집 디자인에는, 항공기 위장 원리가 적용되었다. 미러링 겸 무아레moiré 파사드가 적용된 2층은 소멸 효과에 의해 풍경과 일체를 이루었고, 스튜디오가 자리한 녹화된 옥상 풍경은 전원도시 풍경과 일체를 이루었다.
The wine cellar, swimming pool with grotto, access area, fencing with entrance gate and dustbin box grow into the slope and merge with the garden. The garden flows smoothly around the house and creates hidden bays protected from the outside that allow panoramic views of the city. The open concept naturally achieves privacy thanks to the vegetation protecting the boundaries of the site.
HOUSES • ZLÍN, CZECH REPUBLIC
Architects: petrjanda/brainwork
Area: 400 m²
Year: 2020
Photographs: BoysPlayNice
Manufacturers: Grohe, M&T, Occhio, ABB, Duravit, No-Ha, Polysan
Landscape Consultants: Jitka Tomsová
Wine Cellar Design: Jiří Stelšovský
Swimming Pools: BERNDORF BÄDERBAU
Gates: ELEKTRIFY
HVAC: Active Elements
Floors: Rajmund Coufal
Interiors: EFF
Glazing: AZ Glass
Structure: AREA ZLÍN
Mosaic Mural: Los Kachlos
Garden And Landscape Design: GARD&N
Fireplace: Krby Zlín
Lights: Ateh
Lazy House by petrjanda/brainwork
































































