
내구성과 미학적 측면에서 표준 건축비로 고품질 주거 공간을 구축할 수 있음을 보여주는 프랑스의 건축 사례이다.
노출 콘크리트로 이루어진 지붕을 8개의 주변부 기둥과 2개의 중앙부 코어로 지지하여, 미스 반 데어 로에Mies의 건축 미학과 구조적 독창성을 재해석한, 프랑스 알자스주 에버스하임Ebersheim 마을의 신축 주택이다.
이 집의 구조는 마치, 알자스 지역의 고대 고인돌 아래에 낙엽송 목재로 주거 공간을 지은 것처럼 이루어졌다. 철근콘크리트 타프를 치고 그 아래에 목조 텐트를 친 것 같기도 하다.
이 평지붕 구조는, 리에드Ried 평야의 지평선을 반영한 결과이다. 현지의 우세풍과 악천후로부터 스스로를 보호하는 구조를 가진 집이, 햇빛, 과수원, 멀리 바라다 보이는 오쾨니스부르Haut-Koenigsbourg성을 향해 열려있다.
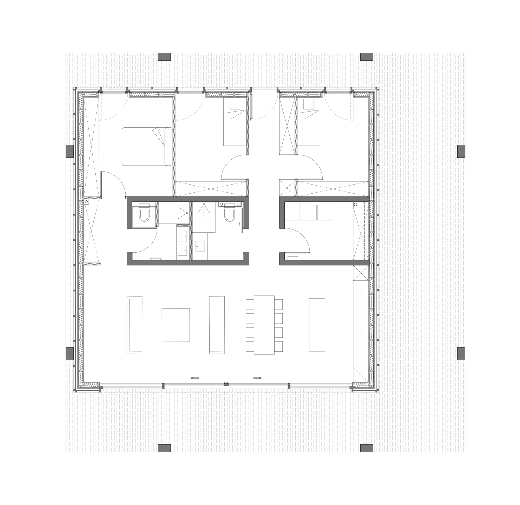
지붕은 15m x 15m 크기의 정사각형으로 이루어졌고, 그 아래의 주거 공간은 12m x 12m 크기의 정사각형으로 이루어졌다. 주거공간을 지붕과 어긋나게 설치함으로써, 도로 측에는 포치, 한쪽 측면에는 간이 차고, 그리고 과수원 측에는 일조량 조절 기능을 하는 처마 공간이 형성되도록 했다. 주거 부분은 비내력 목조 외벽으로 둘러싸여 있으며, 양모와 목질 섬유 단열재가 적용되었다.
The cladding in larch wood panels delimited by frames in reliefs forms a composition with rhythmic and changing shadows according to the hours and the seasons. The entrance is marked by transparency through the two structural concrete cores, allowing the viewer to get through the house, from the street to the orchard. The plan is then organized very simply around these 2 technical blocks integrating bathrooms, technical rooms, and storage.
On the street side, the rooms sheltered by a rather closed facade, still enjoy a beautiful brightness with full height windows integrating naturally with the facade frames. On the orchard side, the kitchen opens onto the living rooms to form a vast and bright set with a very strong internal/external relationship with the orchard. This continuity between interior and exterior reaches its climax with the opening of two of the four solid wood frames windows, creating a free opening of 5m, without threshold or post.
This project tries to show that even with a standard budget, the aesthetic poverty and constructive mediocrity of the french residential suburbs are not a fatality. The use of noble and durable materials is possible, the pleasure of living conceivable and beauty more than ever necessary!
HOUSES • EBERSHEIM, FRANCE
Architects: AL PEPE architects
Area: 135 m²
Year: 2020
Photographs: Alexandre Besson / Pascal Philbert
Manufacturers: AutoDesk, Hansgrohe, Legrand, Pavatex, Steico, SIEGENIA
Structure Engineers: CAPEM
Design Team: Pascal Philbert, Aude Lecinski, Thibaud Loegler
Maison L by AL PEPE architects

























