
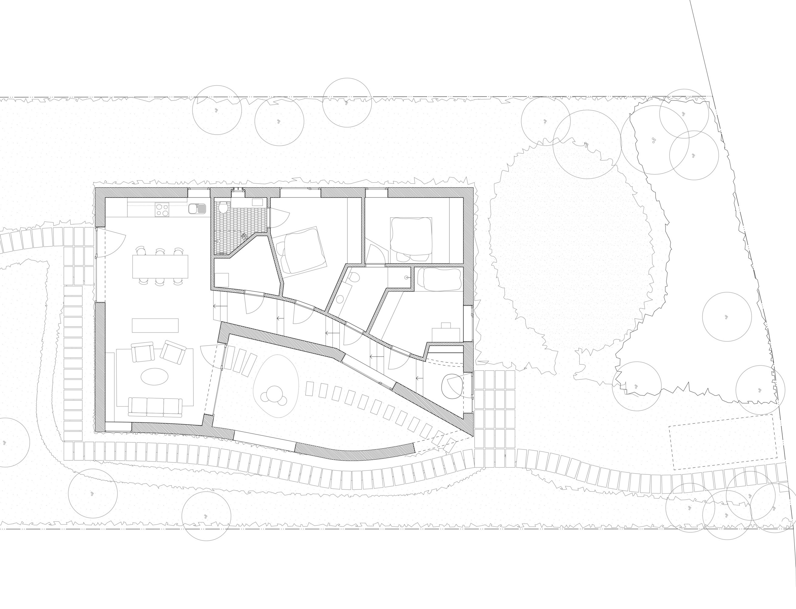
여성 건축주가 어머니와 가족이 사용할 수 있게 하려고, 벨기에 에스꼬강 주변 시골지역의 비탈진 자연 지형을 따라 지은 주말주택이다. 현관에서 거실까지 집을 세로질러 계단식 통로가 이어져 있다. 통로 오른쪽에 각 계단참에서 드나들 수 있는 3개의 침실과 2개의 욕실이 있고, 왼쪽의 큰 창을 통해서는 ‘옥외실’로 기능하는 테라스가 보인다.
가장 높은 곳에 위치한 거실 겸 주방에는 동쪽과 서쪽으로 프렌치 도어 딸린 전망창이 설치되었다. 서측 전망창은 인접한 외부의 숲을 액자화하고, 동측 전망창은 인접한 내부 테라스와 에스꼬 계곡을 향해 있다.
“집 안에 오르막 비탈길이 있는 집입니다.” Bovenbouw Architectuur의 설립자 Dirk Somers의 설명이다. “비탈진 계단식 복도를 따라 올라가면 숲 풍경이 눈에 들어옵니다.”
“전통적인 이웃 주택들과 다르게 디자인하고 싶었습니다.” 이 역시 Somers의 설명이다. “이 동네에 있는 대부분의 오래된 집들도 스플릿 레벨 구조로 지어지긴 했지만, 우리는 지형과 보다 더 긴밀하게 연계된 집을 짓고자 했습니다.” 같은 스플릿 레벨 구조이지만 더 여러 부분으로 잘게 나누어서 단차가 조금씩 나게 만들었다는 것이다.
“146제곱미터(약 44평) 규모의 집이지만, 웅장하게 보이기보다는 경량감이 느껴지게 짓고 싶었습니다.” 계속되는 Somers의 설명이다. “그래서 조적벽을 두께감이 느껴지지 않게 패턴 시트지를 붙인 것처럼 보이도록 쌓았습니다.” 두 벽면이 만나는 모서리 부분을 보면 조적의 두께가 느껴지지 않게 쌓았음을 알 수 있다. 외부는 검은색으로 칠해졌고 내부는 흰색으로 마감되었다. 그리고 테라스에는 적갈색이 사용되었다.
설계팀의 설명에 따르면, 개구부를 포함한 안쪽에 밝은 색상을 사용하고, 외벽면은 이와 대비되는 어두운 색상의 패턴 시트지를 붙인 것처럼 만듦으로써, 장난스러우면서도(벽돌 느낌이 나게 시트지를 붙이는 일반적인 경우와 달리 시트지 느낌이 나게 벽돌을 쌓았다는 점에서) 무게감이 덜 느껴지게 하는 데 도움이 되었다고 한다.
이는 모서리 부분의 블록을 45도로 커팅하여 쌓은 결과이다. 이로써 중량감과 경량감이 모두 느껴지는 집이 되었다.
HOUSES • KRUIBEKE, BELGIUM
Architects: Bovenbouw architectuur
Area: 121 m²
Year: 2019
Photographs: Stijn Bollaert
Manufacturers: Ploegsteert, Röben, Saint-Gobain, Derycke, La Chapelle, Renaplus
Lead Architects: Dirk Somers, Markus Stolz, Rutger Boruwers, Nicolas De Paepe
Weekend House in Bazel by Bovenbouw architectuur













