
건물 전체가 여러 개의 가느다란 기둥 위에 지어진, 헝가리 쾨세그Köszeg 인근 Alpokalja 숲속의 휴가용 주택으로, 40제곱미터(약 12평) 밖에 안 되지만 침실을 갖춘 집이다.
이 별장은 혼자 지을 수 있도록 설계되었다. 전에 Béres Architects와 협업을 한 적이 있는 건축가이자 건축주인 Hideg Attila가 자신이 혼자 지을 수 있는 목조 주택을 설계해 달라면서 의뢰를 했기 때문이다.
고상식으로 설계를 함으로써 건물 기초 터파기를 안 해도 되었기 때문에, 건축 과정이 훨씬 수월했다고 한다. 이를 통해, 나무뿌리를 손상시키지 않고 기존 나무 가까이에 집을 지을 수 있었다.
“부지의 자연적 가치를 극도로 존중한 설계를 했습니다.” Béres Architects 소속의 건축가 Béres Attila의 설명이다. “주변 나무의 뿌리를 손상시키지 않도록 가는 기둥의 위치를 주의하여 선정했습니다. 장비로 굴착이나 복토를 하면 자연이 파괴될 수밖에 없습니다.”
건물 외부에는, 내부 마감재와 대조되는 회색이 균일하게 적용되었다. “내부는 따뜻하고 포근한 분위기로 인테리어를 하고, 외부는 캔버스처럼 거칠면서도 균일한 색상으로 마감하여 숲이 그 위에 마음대로 색상과 패턴을 그려나갈 수 있게 했습니다.”
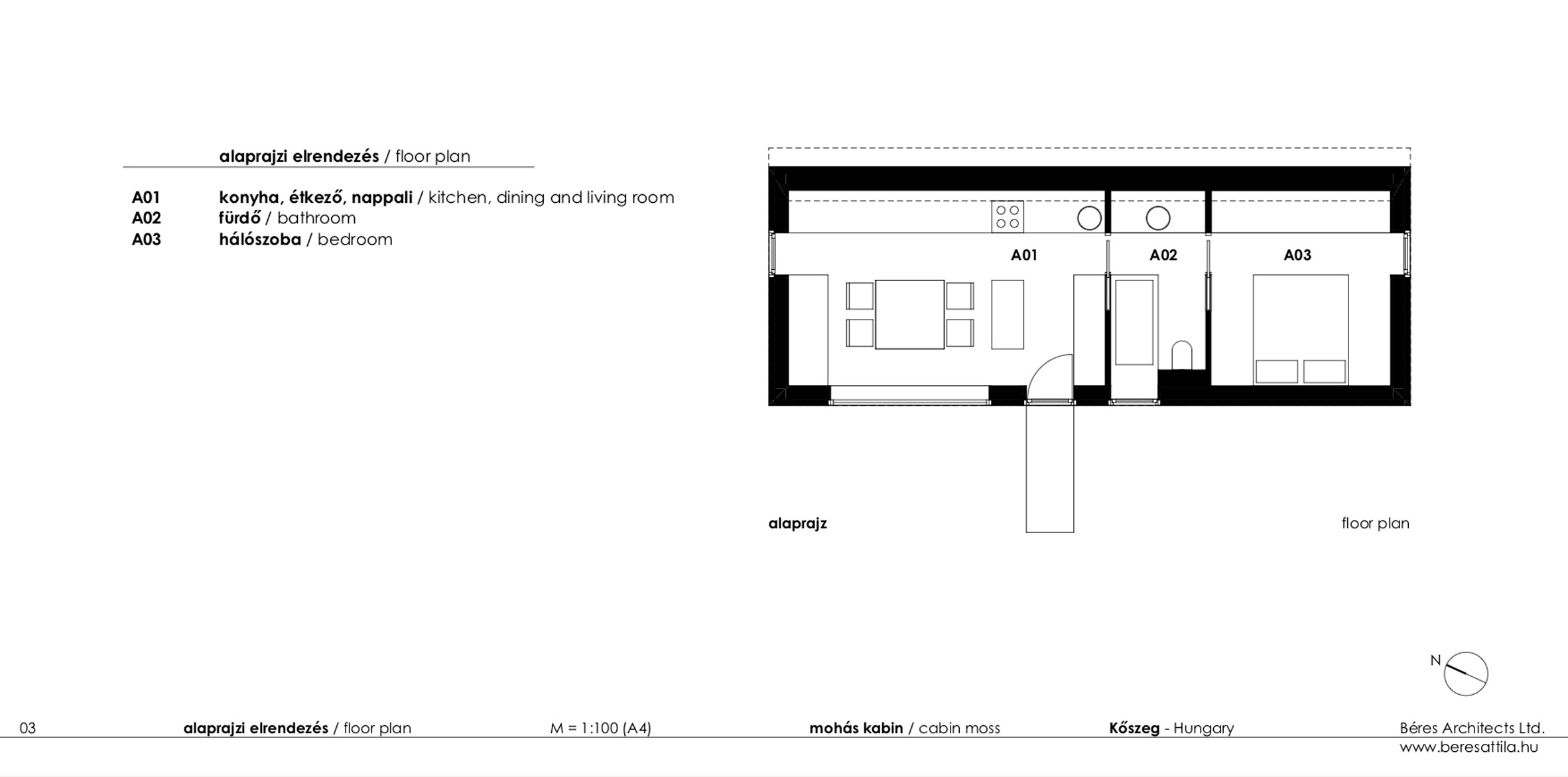
이 집은, 주방/식당 겸 거실, 욕실, 침실 등 3개의 공간으로 이루어졌다. 수납장이 건물 전체 길이에 걸쳐 설치되어 있어서 공간 사이의 연속성이 어느 정도 확보되었다. 거실과 침실의 벽과 천장 마감에 목재 패널을 적용하여 밝은 분위기로 인테리어를 한 반면, 가운데 욕실은 이와 대조되는 어두운색으로 마감되었다. 그리고 윈도 시트, 포켓 도어 등 제한된 공간을 효율적으로 활용할 수 있는 아이디어들이 곳곳에 적용되었다.
“이 집 디자인의 핵심 포인트는 최대한 작은 공간으로 건축 목표를 달성하는 것이었습니다.” 설계팀의 설명이다. “불필요한 공간, 남는 공간, 버린 공간 하나 없이 콤팩트하게 공간을 계획했습니다. 환경친화적인 건축은 공간의 규모를 줄이는 것으로부터 출발해야 합니다.”
자연 환기가 이루어지도록 면밀한 검토를 거쳐 창의 위치를 선정·설치함으로써 에어컨의 필요성을 없앴고, 난방과 온수용 에너지로는 전기를 사용한다고 한다.
helyszín: Kőszeg, Magyarország, Poland
projekt dátum: 2019
elkészülés ideje: 2021
terület: 40m2
típus: erdei nyaraló
megrendelő: Hideg Attila
építész tervezők: Béres Attila, Hideg Attila
tartószerkezet: Fazekas Zoltán
photography is by Tamás Bujnovszky
Mohás Kabin by Béres Architects



















