
“작은 고추가 맵다는 것을 보여주고 싶었습니다.” 설계팀의 설명이다. “형태, 건축면적, 인테리어 디자인 등에 꼭 필요한 만큼만 취하겠다는 생활 철학을 담았습니다.” 주택은 다른 건축 프로젝트에 비해 규모가 작을 수밖에 없다. 작은 프로젝트이지만 건축을 제대로 야무지게 했다는 자부심이 느껴지는 말이다.
강판 사이딩으로 마감된 이 건물은, 바람막이 역할을 하는 북쪽의 암석 노두를 끼고 지어졌다. 전망대 역할을 하는 발코니가 눈 덮인 산봉우리를 향해 돌출 구조로 설치되었다. 강 기둥을 암반에 박고 그 위에 침실을 설치하여 언덕 위에 떠 있는 공간으로 만들었다.
“이런 구조를 적용한 결과, 규모에 비해 공간감과 입체감이 풍부하게 느껴지도록 만들 수 있었습니다.” 설계팀의 설명이다. “그리고 이 건물에는, 지구 온난화에 따른 산불 발생에 대비한 방어 기제들이 적용되었습니다.”
화강암 노두가 숲과 집 사이의 방화대를 형성하도록 건물이 배치되었다. 콘크리트 기저부, 철골조, 강판 사이딩을 포함한 외부는 100% 내화재로 시공되었다. 지붕에는, 불연성 지붕널 제품인 ‘DensDeck’을 설치한 다음 멤브레인 시공을 했다고 한다. 홈통을 없앰으로써, 날아오는 불똥이 쌓여서 발화할 가능성을 차단했다. 처마 밑면에도, 벤트를 설치하지 않고 ‘DensDeck’를 설치한 다음 경질 목재 데크재로 마감을 했다. 그리고 노출된 서까래 사이에 자동 화재 스프링클러 시스템을 설치한 다음 까만색으로 칠을 하여 인더스트리얼 디자인 요소로 활용했다.
단순한 개방형 공간구조를 적용하여, 자연 환기, 풍부한 채광, 그리고 피동식 태양열 난방이 이루어지도록 했다. 바닥부터 천장까지 닿는 여닫이창을 적용하여, 에어컨 없이도 시원하게 지낼 수 있다고 한다. 열을 축적했다가 서서히 방출하는 콘크리트 슬래브와 장작 난로를 설치하여 효율적으로 난방을 할 수 있게 했다. 단열 시공을 기밀하게 했음은 물론이다.
벽체와 지붕에는, 건축법의 효율성 표준을 초과하는 재료인 폐쇄식 셀 폼 단열재와 재활용 블로-인 셀룰로오스 단열재가 적용되었다. 이 집은, 전기가 들어오는 곳에 위치하지만, 지붕에 설치된 4kW 태양광 패널을 통한 자체 발전 전기로 작동된다. 고효율 전기제품, 밝기를 조절할 수 있는 100% LED 조명, 풍부한 자연광으로 전력 소모를 최소화했고, 간이 차고에는 전기 자동차용 충전 콘센트가 설치되었다.
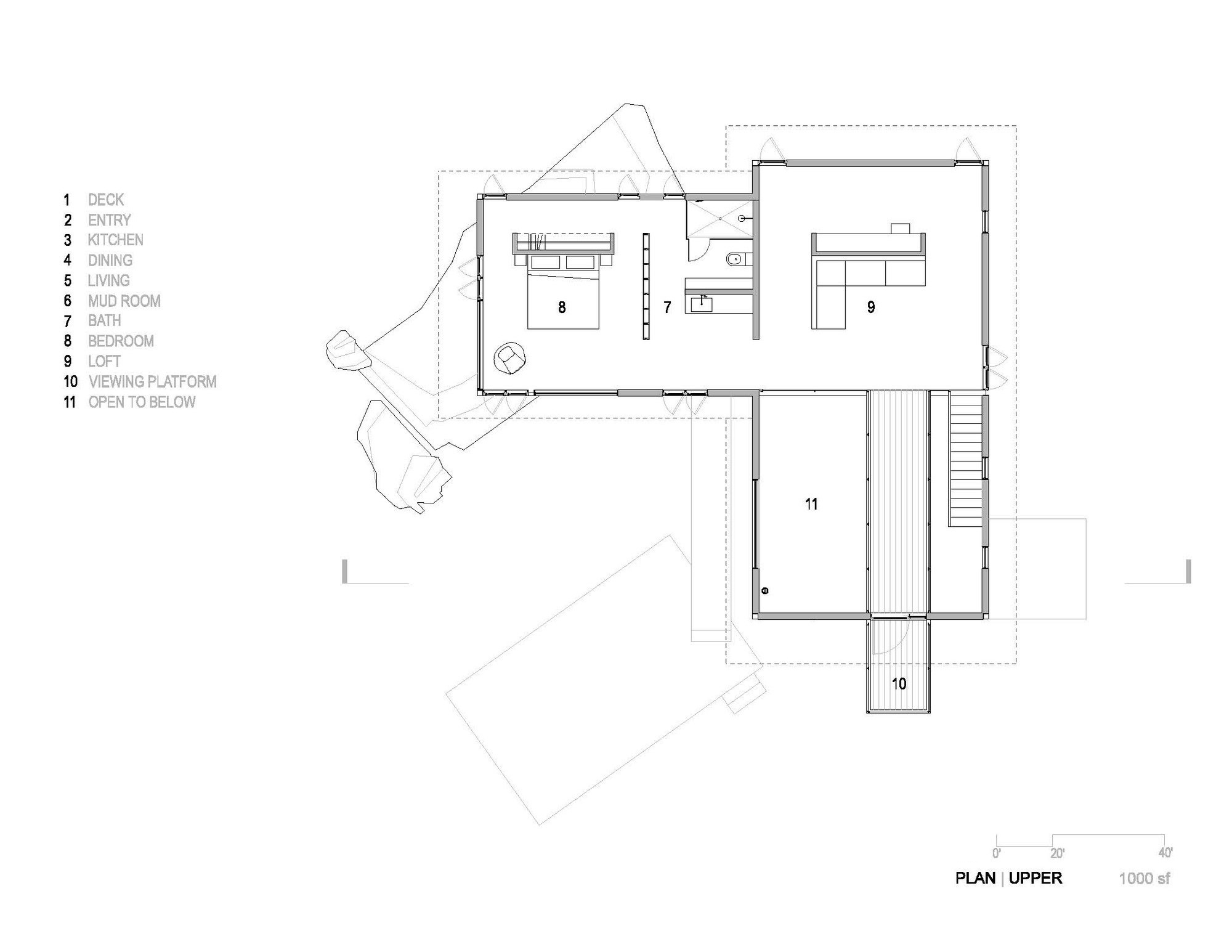
2층 가족실과 발코니 사이를 잇는, 거실 위의 브리지도 인상적이다.
HOUSES • BOULDER, CO, UNITED STATES
Architects: Renée del Gaudio
Area: 1860 ft²
Year: 2020
Photographs: David Lauer Photography
Manufacturers: Duravit, Marvin, Big Ass Fan, Hand and Eye Studio, Reynaers Entry Doors, Sheathing/Insulation, Tala Pendants, Watermark wall mount sink faucet
Construction: Coburn Development, Dan Flohrs
Architecture: Renée del Gaudio
Interior Design: Renée del Gaudio
Goatbarn Lane by Renée del Gaudio




















